

FQ641F-16P不銹鋼氣動消防車球閥
*** : 滬工恒 型號 : FQ641F-16P 材質 : 不銹鋼 連接形式 : 法蘭 結構形式 : 浮動球球閥 公稱通徑 : 15-200 適用介質 : 水 壓力環境 : 常壓 工作溫度 : 常溫 標準 : 國標 流動方向 : 單向 驅動方式 : 電動 零部件及配件 : 執行器 用途 : 調節 類型(通道位置...
產品型號:FQ641F-16P
產品口徑(DN):DN50-DN100(mm)
產品壓力(PN):0.6Mpa-2.5Mpa(Mpa)
更新日期:2022-03-10
免費詢價
24小時免費咨詢電話021-80392609
- 產品詳情
| *** : | 滬工恒 | 型號 : | FQ641F-16P |
| 材質 : | 不銹鋼 | 連接形式 : | 法蘭 |
| 結構形式 : | 浮動球球閥 | 公稱通徑 : | 15-200 |
| 適用介質 : | 水 | 壓力環境 : | 常壓 |
| 工作溫度 : | 常溫 | 標準 : | 國標 |
| 流動方向 : | 單向 | 驅動方式 : | 電動 |
| 零部件及配件 : | 執行器 | 用途 : | 調節 |
| 類型(通道位置) : | 直通式 |
產品詳情
Product details
Product details
產品概述
氣動方球閥/消防球閥主要用于輸送水、泡沫混合液及其他液體滅火劑,介質溫度為-40℃~+70℃范圍內。主要安裝在消防滅火的各種管路上(如:消防車、消防管路供水系統等)。產品執行標準:ga 79-94
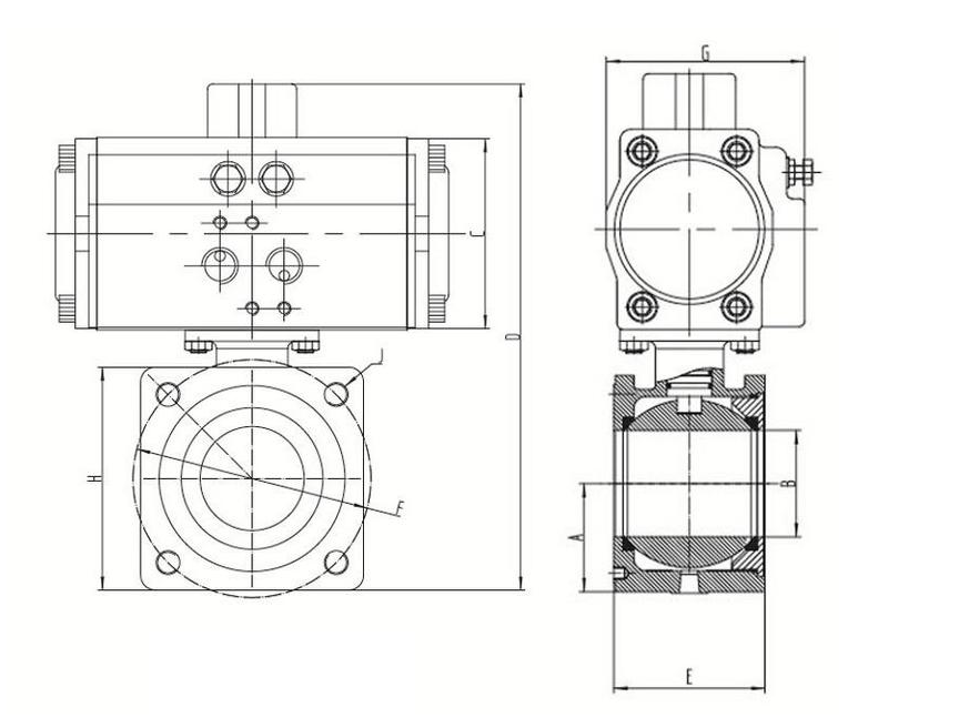
氣動方球閥主要用鑄鐵、不銹鋼、聚四氟乙烯等加工而成。主要結構及連接尺寸如下圖及表
| 口徑 | A | B | C | D | E | F | G | H | J | K | H1 | L |
| DN40 | 41.5 | 40 | 103 | 240 | 90 | 85 | 96 | 83 | 4-M8 | 193 | 208 | 162 |
| DN50 | 52 | 47 | 103 | 243 | 79 | 108 | 96 | 100 | 4-M10 | 193 | 208 | 162 |
| DN65 | 65 | 60 | 116 | 300 | 85 | 138 | 109 | 128 | 4-M12 | 220 | 236 | 162 |
| DN80 | 70 | 70 | 128 | 310 | 105 | 160 | 113 | 140 | 4-M12 | 220 | 275 | 208 |
| DN100 | 112.5 | 88 | 128 | 254 | 123 | 180 | 113 | 220 | 8-M12 | 233 | 373 | 258 |
產品結構圖

安裝注事事項
1、安裝前應核對蝶閥規格、壓力、溫度、耐腐性是否滿足使用要求。 應檢查各零部件是否損壞或松動。2、本氣動方球閥可安裝在任意角度的管道上,應關閉安裝為宜;焊接管道法蘭時應將閥門密封口用板擋住以防止顆粒、雜物挫傷密封面,焊后取下閥門,對閥門密封面及管道內腔進行清潔,然后再安裝固定閥門。
3、安裝時請注意閥門關閉狀態承壓方向。
4、安裝前應將密封面(兩端密封面、蝶板密封面、閥座密封面)徹底擦干凈,去掉灰塵和污物。
5、安裝前應空試蝶閥,啟閉應靈活,啟閉位置與指針指示位置相符合。
6、手動操作順時針為關,逆時針為開,指針指示到位后不準再加力啟閉閥門。
7、閥門做壓力試驗時,不準用單法蘭進行安裝試壓,必須采用雙法蘭安裝試壓。其試驗壓力應符合GB/T13927-92標準規定。
8、緊固螺栓時應對稱交替進行緊固,不準依次單獨緊固。
9、限位螺釘出廠前,已經調好,不準輕易調整。若配置驅動裝置為電動、氣動請閱配套驅動裝置說明書。
10、氣動方球閥出廠時已將控制機構的啟閉行程調好。通電時應檢查指示盤方向與閥門開啟方向一致即可。
11、發現閥門啟閉失常應查明原因進行修理和排除,防止用加力方法開關閥門,造成閥門的損壞。










聲明:本文中所有文字、數據、圖片均只適用于參考,FQ641F-16P不銹鋼氣動消防車球閥性能參數、結構尺寸參數、價格等詳情,請聯系我們,電話:021-80392609。
-

XQ41F-16P手動不銹鋼信號球閥 限位開關調節控制高性能
*** GH/工恒 公稱直徑 15cm 數量 580個 是否支持加工定制 是 是否進口 否 包裝規格 DN...
-

Q641F-100P 電動高壓不銹鋼球閥 導熱油蒸汽高溫耐磨開
*** 滬工恒 公稱直徑 25cm 數量 750個 是否支持加工定制 是 是否進口 否 包裝規格 DN2...
-

Q641F-100P 電動高壓不銹鋼球閥 導熱油蒸汽高溫耐磨開
*** 滬工恒 公稱直徑 25cm 數量 480個 是否支持加工定制 是 是否進口 否 包裝規格 15m...
-

Q641F-16P氣動防爆球閥 高溫高壓蒸汽防爆切斷調節開關
*** 滬工恒 公稱直徑 25cm 數量 400個 是否支持加工定制 是 是否進口 否 包裝規格 DN2...


