

Q941F電動法蘭調節球閥PN16~PN40
產品概述 Q941F電動法蘭調節球閥PN16~PN40適用于兩位調節、切斷的場合。閥與執行機構的連接采用直連方式,電動執行機構內置伺服系統,無須另配伺服放大器,輸入4-20mA信號及220VAC電源即可控制運轉。具有連線簡單,結構緊湊、尺寸...
- 產品詳情
產品概述
Q941F電動法蘭調節球閥PN16~PN40適用于兩位調節、切斷的場合。閥與執行機構的連接采用直連方式,電動執行機構內置伺服系統,無須另配伺服放大器,輸入4-20mA信號及220VAC電源即可控制運轉。具有連線簡單,結構緊湊、尺寸小、重量輕、阻力小、動作穩定可靠等***點。執行機構可根據用戶要求另配置UNIC、PSQ、HQ、DHL等型號電子式電動執行機構。閥門執行標準
1、設計與制造:GB12237-89、API608、API 6D、JPI 7S-48、BS5351、DIN3357。2、法蘭尺寸:JB/T74~90(JB74~90)、GB9112~9131、HGJ44~76、SH3406、ANSI B16.5、JIS B2212~2214、NF E29-211、DIN2543。
3、結構長度:GB12221-89、ANSI B16.10、JIS B2002、NF E29-305、DIN3202。
4、檢驗主試驗:JB/T 9092、API 598。
主要技術指標
控制精度:0.1%-3.0%(通過U4參數可調)可接電動執行器反饋信號:電位器500Ω-10KΩ
可接收外部控制信號(DC):4-20mA(1-5V、0-10V、開關量等出廠前定制)
輸入阻抗:250Ω;
通過修改U1參數可設定:①DRTA/正動作,RVSA/逆動作模態②輸入信號中斷時"中斷"模態—OPEN(開)、STOP(停)、SHUT(閉)
可選:①可控硅輸出(AC,600V,2***)②繼電器輸出(AC,250V,10A)◆定貨時指明
輸出執行器位置信號:低漂移輸出4-20mADC對應執行器全閉到全開,信號完全與輸入隔離(光電隔離),輸出負載≤500Ω
環境溫度:0-70℃,濕度:35-85%
有超溫保護功能:定位器殼內溫度≥70℃時,定位器停止對執行器的開閉控制
可通過按鍵自由標定輸入信號所對應執行器的動作區間(一般標定為電動執行器全閉、全開位置)

主要技術參數
| 試驗壓力 (Mpa) | 公稱壓力(Mpa) | 壓力級(class) | JIS(Mpa) | |||||||
|---|---|---|---|---|---|---|---|---|---|---|
| 1.6 | 2.5 | 4.0 | 6.4 | 10.0 | 150 | 300 | 600 | 10K | 20K | |
| 強度試驗 | 2.4 | 3.8 | 6.0 | 9.6 | 15.0 | 3.1 | 7.8 | 15.3 | 2.4 | 3.8 |
| 密封試驗 | 1.8 | 2.8 | 4.4 | 7.0 | 11.0 | 2.2 | 5.6 | 11.2 | 1.5 | 2.8 |
| 氣密試驗 | 0.5~0.7 | |||||||||
主要零部件材料
| 零件名稱 | 材 料 | ||||||
|---|---|---|---|---|---|---|---|
| 閥體 | WCB | ZG1Cr18Ni9Ti | CF8 (304) | CF3 (304L) | ZG1Cr18Ni12Mo2Ti | CF8M(316) | CF3M (316L) |
| 球體、閥桿 | 2Cr13 | 1Cr18Ni9Ti | 0Cr19Ni9 (304) | 00Cr19Ni11 (304L) | 1Cr18Ni12Mo2Ti | 0Cr17Ni12Mo2 (316) | 00Cr17Ni12Mo2 (316L) |
| 密封圈 | 聚四氟乙烯(PTFE)、增強聚四氟乙烯(PPL)、對位聚苯 柔性石墨 | ||||||
| 適用介質 | 水、氣體、蒸汽、油品等 | 硝酸等腐蝕性介質 | 強氧化性介質 | 醋酸等腐蝕介質 | 尿素等腐蝕性介質 | ||
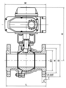
主要外形結構尺寸
| 公稱壓力DN | L | D | H | L1 | D1 | b | Z-d1 | H1 |
|---|---|---|---|---|---|---|---|---|
| 壓力 | 1.6/2.5/4.0 | 1.6/2.5/4.0 | 1.6/2.5/4.0 | 1.6/2.5/4.0 | 1.6/2.5/4.0 | |||
| 15 | 130/130/140 | 95 | 275 | 157 | 65 | 14/16/16 | 4-14 | 48 |
| 20 | 140/140/150 | 105 | 280 | 157 | 75 | 14/16/16 | 4-14 | 53 |
| 25 | 150/150/165 | 115 | 287 | 157 | 85 | 14/16/16 | 4-14 | 58 |
| 32 | 165/165/180 | 135 | 354 | 208 | 100 | 16/16/18 | 4-18 | 68 |
| 40 | 180/180/200 | 145 | 312 | 208 | 110 | 16/16/18 | 4-18 | 73 |
| 50 | 200/200/220 | 160 | 325 | 208 | 125 | 16/20/20 | 4-18 | 80 |
| 65 | 220/220/250 | 180 | 335 | 256 | 145 | 18/22/22 | 4-18/8-18/8-18 | 90 |
| 80 | 250/250/280 | 195 | 365 | 256 | 160 | 20/22/22 | 8-18 | 98 |
| 100 | 280/280/320 | 215/230/230 | 400 | 256 | 180/190/190 | 20/24/24 | 8-18/8-23/8-23 | 120 |
| 125 | 320/320/360 | 245/270/270 | 420 | 256 | 210/220/220 | 24/28/30 | 8-23/8-25/8-25 | 140 |
| 150 | 360/360/400 | 280/300/300 | 440 | 256 | 240/250/250 | 24/28/30 | 8-23/8-25/8-25 | 167 |
| 200 | 400/400/550 | 335/360/375 | 470 | 256 | 295/310/320 | 26/34/38 | 12-23/12-25/12-30 | 210 |
| 250 | 630 750 | 405 470 | 545 | 380 | ||||
| 300 | 750 870 | 460 530 | 580 | 380 |
產品結構尺寸圖:

球閥安裝注意事項:
1.安裝施工小心,切忌撞擊閥門。2.安裝前,應將球閥作一檢查,核對規格型號,鑒定有無損壞,尤其對于閥桿。還要轉動幾下,看是否歪斜,因為運輸過程中,易撞歪閥桿。還要閥內的雜物。
3.球閥起吊時,繩子不要系在手輪或閥桿上,以免損壞這些部件,應該系在閥體上。
4.對于球閥所連接的管路,一定要清掃干凈?捎脡嚎s空氣吹去氧化鐵屑、泥砂、焊渣和其他雜物。這些雜物,不但容易擦傷球閥的密封面,其中大顆粒雜物(如焊渣),還能堵死小閥門,使其失效。
5.安裝時要留有閥柄旋轉的位置。6.球閥不能用作節流。 7.帶傳動機構的球閥應直立安裝。






聲明:本文中所有文字、數據、圖片均只適用于參考,Q941F電動法蘭調節球閥PN16~PN40性能參數、結構尺寸參數、價格等詳情,請聯系我們,電話:021-80392609。






