
Z541H、Z541Y、Z541W型PN16、PN25法蘭連接鋼制錐齒輪傳動楔式閘更新日期:2013-10-31
主要性能參數
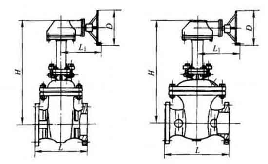
主要外形及結構尺寸
| 型號 | PN |
適用溫度 (℃) |
工作壓力 (Mpa) |
適用介質 | 材料 | |||
| 閥體、閥蓋 | 閘板 | 閥座 | 閥桿 | |||||
| Z541H-16C | 16 | ≤200 | 1.6 | 非腐蝕性介質 | 碳鋼 | 碳鋼+鉻鋼或鈷鉻鎢 | 碳鋼+鉻鋼或鈷鉻鎢 | 鉻鋼 |
| ≤300 | 1.25 | |||||||
| ≤425 | 0.9 | |||||||
| Z541Y-16C | ≤200 | 2.5 | 碳鋼 | 碳鋼+鉻鋼或鈷鉻鎢 | 碳鋼+鉻鋼或鈷鉻鎢 | 鉻鋼 | ||
| ≤300 | 2.0 | |||||||
| ≤425 | 1.4 | |||||||
| Z541Y-16I | 16 | ≤325 | 1.4 | 非腐蝕性介質 | 鉻鉬鋼 | 鉻鎳鋼+鈷鉻鎢 | 鉻鎳鈦鋼+鈷鉻鎢 | 鉻鉬釩鋼 |
| ≤450 | 1.0 | |||||||
| ≤550 | 0.4 | |||||||
| Z541W-16P | ≤200 | 1.6 | 腐蝕性介質 | 鉻鎳鈦鋼 | 鉻鎳鈦鋼+鈷鉻鎢 | 鉻鎳鈦鋼+鈷鉻鎢 | 鉻鎳鈦鋼 | |
| Z541W-16R | 鉻鎳鉬鈦鋼 | 鉻鎳鉬鈦鋼+鈷鉻鎢 | 鉻鎳鉬鈦鋼+鈷鉻鎢 | 鉻鎳鉬鈦鋼 | ||||
| Z541Y-16P | ≤200 | 1.6 | 鉻鎳鈦鋼 | 鉻鎳鈦鋼+鈷鉻鎢 | 鉻鎳鈦鋼+鈷鉻鎢 | 鉻鎳鈦鋼 | ||
| Z541Y-16R | 鉻鎳鉬鈦鋼 | 鉻鎳鉬鈦鋼+鈷鉻鎢 | 鉻鎳鉬鈦鋼+鈷鉻鎢 | 鉻鎳鉬鈦鋼 | ||||
| Z541H-25 | 25 | ≤200 | 2.5 | 非腐蝕性介質 | 碳鋼 | 碳鋼+鉻鋼或鈷鉻鎢 | 碳鋼+鉻鋼或鈷鉻鎢 | 鉻鋼 |
| ≤300 | 2.0 | |||||||
| ≤425 | 1.4 | |||||||
| Z541Y-25 | ≤200 | 2.5 | 碳鋼 | 碳鋼+鉻鋼或鈷鉻鎢 | 碳鋼+鉻鋼或鈷鉻鎢 | 鉻鋼 | ||
| ≤300 | 2.0 | |||||||
| ≤425 | 1.4 | |||||||
| Z541Y-25I | ≤325 | 2.2 | 非腐蝕性介質 | 鉻鉬鋼 | 鉻鎳鋼+鈷鉻鎢 | 鉻鎳鈦鋼+鉻鋼或鈷鉻鎢 | 鉻鎳釩鋼 | |
| ≤450 | 1.6 | |||||||
| ≤550 | 0.64 | |||||||
| Z541W-25P | ≤200 | 2.5 | 腐蝕性介質 | 鉻鎳鈦鋼 | 鉻鎳鈦鋼+鈷鉻鎢 | 鉻鎳鈦鋼+鈷鉻鎢 | 鉻鎳鈦鋼 | |
| Z541W-25R | 鉻鎳鉬鈦鋼 | 鉻鎳鉬鈦鋼+鈷鉻鎢 | 鉻鎳鉬鈦鋼+鈷鉻鎢 | 鉻鎳鉬鈦鋼 | ||||
| Z541Y-25P | ≤200 | 鉻鎳鈦鋼 | 鉻鎳鈦鋼+鈷鉻鎢 | 鉻鎳鈦鋼+鈷鉻鎢 | 鉻鎳鈦鋼 | |||
| Z541Y-25R | 鉻鎳鉬鈦鋼 | 鉻鎳鉬鈦鋼+鈷鉻鎢 | 鉻鎳鉬鈦鋼+鈷鉻鎢 | 鉻鎳鉬鈦鋼 | ||||
主要外形及結構尺寸
| DN | L | D | H | L1 | 轉矩/N.m | 重量/kg |
| 300 | 500 | 305 | 1155 | 341 | 340 | 465 |
| 350 | 550 | 305 | 1420 | 357 | 730 | 475 |
| 400 | 600 | 305 | 1590 | 357 | 730 | 786 |
| 450 | 650 | 305 | 1705 | 357 | 730 | 936 |
| 500 | 700 | 305 | 1816 | 357 | 730 | 994 |
| 600 | 800 | 458 | 2890 | 427 | 1470 | 1400 |
| 700 | 900 | 458 | 3280 | 507 | 2940 | 2300 |
| 800 | 1000 | 610 | 3575 | 608 | 5800 | 3000 |
| 900 | 1100 | 610 | 3790 | 608 | 5880 | 3490 |
| 1000 | 1200 | 610 | 4030 | 608 | 5880 | 4100 |
| DN | L | D | H | L1 | 轉矩/N.m | 重量/kg |
| 300 | 500 | 305 | 1190 | 341 | 340 | 497 |
| 350 | 550 | 305 | 1420 | 357 | 730 | 666 |
| 400 | 600 | 305 | 1600 | 357 | 730 | 969 |
| 450 | 650 | 458 | 1725 | 427 | 1470 | 980 |
| 500 | 700 | 458 | 1940 | 507 | 2940 | 1821 |
| 600 | 800 | 458 | 2954 | 507 | 2940 | 2370 |
| 700 | 900 | 610 | 340 | 608 | 5880 | 3009 |
| 800 | 1000 | 610 | 3792 | 608 | 5880 | 4116 |
| 900 | 1100 | 610 | 3991 | 608 | 5880 | 4500 |
| 1000 | 1200 | 610 | 4320 | 608 | 5880 | 5200 |







