

電液動、氣動單位(雙)層卸灰閥/電動重錘單(雙)層卸灰閥
產品概述 本卸灰閥是一種新型的除塵理想設備,能和各種執行機構配套使用,滿足不同的場合和工的要求。具有卸灰徹底、密封性好、重量輕、結構簡單、動作靈敏等特點。廣泛應用于礦山、電力、冶金、建材、化工、輕工等行業。 本卸灰閥與智能控制器給合使用,具...
產品型號:DyXF、DyQXF、DXF、ZXF
產品口徑(DN):150~700/150×150~700×700(mm)
產品壓力(PN):0.4~0.6(Mpa)
更新日期:2012-06-12
免費詢價
24小時免費咨詢電話021-80392609
- 產品詳情
產品概述
本卸灰閥是一種新型的除塵理想設備,能和各種執行機構配套使用,滿足不同的場合和工的要求。具有卸灰徹底、密封性好、重量輕、結構簡單、動作靈敏等特點。廣泛應用于礦山、電力、冶金、建材、化工、輕工等行業。本卸灰閥與智能控制器給合使用,具有卸灰間隔時間可調、故障自動報警、卡料自動排除、電機自動保護等功能,同時還可實現遠控、集控和與微機控制、現場控制。
主要性能參數
適用溫度:≤100℃;≤150℃;≤300℃適用介質:固體小顆粒,粉未物料
電源電壓:380V.AC
氣源壓力:0.4-0.6Mpa
啟閉時間:1-60秒可調
| 規格 | 圓形 | φ150 | φ200 | φ300 | φ400 | φ500 | φ600 | φ700 |
| 方形 | 150×150 | 200×200 | 300×300 | 400×400 | 500×500 | 600×600 | 700×700 | |
| 卸灰能力m3/h | 1.5-20 | 2.5-200 | 5-40 | 8-55 | 12-75 | 17-100 | 25-150 | |
| 電動卸灰閥 | 電動推桿型號 | DTI320-M | DTI10020-M | DTI30020-M | DTI30040-H | |||
| 功率KW | 0.25 | 0.37 | 0.55 | |||||
| 電液動卸灰閥 | 電液動推桿型號 | DYTZ250-20 | DYTZ450-20 | DYTZ700-20 | DYTZ700-30 | DYTZ700-40 | ||
| 功率KW | 0.37 | 0.55 | 0.75 | |||||
| 氣動卸灰閥 | 氣動推桿型號 | QGB6320 | QGB6330 | QGB8030 | QGB10030 | QGB12530 | QGB16030 | QGB20030 |
| 耗氣量(升) | 1.25 | 1.9 | 3 | 4.7 | 7.4 | 12 | 18.8 | |
a-閥板為翻板式密封結構 b閥板為磨菇式密封結構
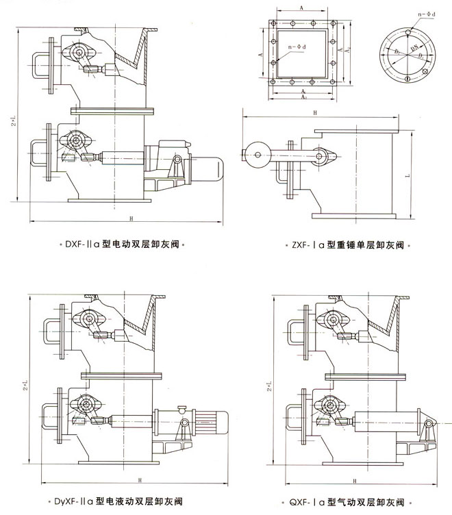
產品外形結構尺寸
|
DN A×A |
D A2×A2 |
D A1×A1 |
n-φd | L | H | 質量(kg) | ||||||
| 電動 | 電液動 | 氣動 | 重錘 | 電動 | 電液動 | 氣動 | 重錘 | |||||
| φ150 | φ260 | φ255 | 8-φ18 | 290 | 700 | 700 | 600 | 550 | 150 | 180 | 120 | 80 |
| φ200 | φ320 | φ280 | 8-φ18 | 375 | 755 | 755 | 680 | 700 | 180 | 210 | 150 | 100 |
| φ300 | φ440 | φ395 | 12-φ22 | 450 | 860 | 860 | 750 | 800 | 260 | 330 | 210 | 160 |
| φ400 | φ540 | φ495 | 16-φ22 | 550 | 970 | 970 | 900 | 1050 | 310 | 410 | 380 | 190 |
| φ500 | φ645 | φ600 | 20-φ22 | 650 | 1070 | 1070 | 1000 | 1150 | 400 | 480 | 420 | 310 |
| φ600 | φ755 | φ705 | 20-φ26 | 800 | 1460 | 1460 | 1250 | 1300 | 540 | 620 | 500 | 410 |
| φ700 | φ860 | φ810 | 24-φ26 | 900 | 1560 | 1560 | 1400 | 145 | 690 | 770 | 610 | 500 |
| 150×150 | 260×260 | 225×225 | 8-φ18 | 290 | 700 | 700 | 600 | 550 | 160 | 190 | 130 | 86 |
| 200×200 | 320×320 | 280×280 | 8-φ18 | 375 | 755 | 755 | 680 | 700 | 190 | 220 | 160 | 110 |
| 300×300 | 440×440 | 395×395 | 12-φ22 | 450 | 860 | 860 | 750 | 800 | 270 | 340 | 220 | 170 |
| 320×320 | 455×455 | 415×415 | 12-φ22 | 460 | 890 | 890 | 850 | 900 | 300 | 390 | 260 | 190 |
| 400×400 | 540×540 | 495×495 | 16-φ22 | 550 | 970 | 970 | 900 | 1050 | 325 | 420 | 390 | 200 |
| 500×500 | 640×640 | 600×600 | 20-φ22 | 650 | 1070 | 1070 | 1000 | 1150 | 440 | 510 | 430 | 320 |
| 600×600 | 755×755 | 705×705 | 20-φ26 | 800 | 1460 | 1460 | 1250 | 1300 | 560 | 660 | 530 | 440 |
| 700×700 | 860×860 | 810×810 | 24-φ26 | 900 | 1560 | 1560 | 1400 | 1450 | 690 | 770 | 610 | 540 |
2、電動、電液動、氣動推桿接線圖、技術參數見"附錄"
3、本閥可按用戶要求設計制造。
4、需附件請在合同中注明(如控制箱)
產品外形結構尺寸圖

聲明:本文中所有文字、數據、圖片均只適用于參考,電液動、氣動單位(雙)層卸灰閥/電動重錘單(雙)層卸灰閥性能參數、結構尺寸參數、價格等詳情,請聯系我們,電話:021-80392609。






