

LMD型氣動螺旋閘門/氣動插板閥
產品概述 LMD型氣動螺旋閘門/氣動 插板閥 是一種粉料、晶粒料、顆粒料及小塊物料的流量或輸送量的主要控制設備,廣泛應用于礦山、糧食等行業控制流量變化或迅速切斷(特料直徑50mm)。 產品外形結構尺寸 LMD型氣動螺旋閘門/氣動插板閥外形結構尺寸(mm) 類別...
產品型號:LMD
產品口徑(DN):220×200~1074×1074(mm)
產品壓力(PN):0.1(Mpa)
更新日期:2012-05-07
免費詢價
24小時免費咨詢電話021-80392609
- 產品詳情
產品概述
LMD型氣動螺旋閘門/氣動插板閥是一種粉料、晶粒料、顆粒料及小塊物料的流量或輸送量的主要控制設備,廣泛應用于礦山、糧食等行業控制流量變化或迅速切斷(特料直徑≤50mm)。產品外形結構尺寸
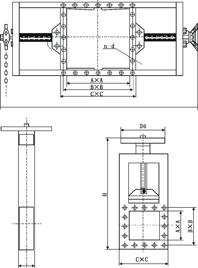
| 類別 | A×A | B×B | C×C | L | H | D0 | n-d |
| 單向 | 220×200 | 256×256 | 296×296 | 100 | 820 | 300 | 8-φ12 |
| 250×250 | 306×306 | 346×346 | 100 | 930 | 340 | 8-φ14 | |
| 300×300 | 356×356 | 396×396 | 100 | 1050 | 380 | 8-φ14 | |
| 400×400 | 456×456 | 496×496 | 100 | 1140 | 445 | 12-φ14 | |
| 450×450 | 510×510 | 556×556 | 120 | 1450 | 530 | 12-φ18 | |
| 500×500 | 560×560 | 606×606 | 120 | 1610 | 580 | 16-φ18 | |
| 雙向 | 600×600 | 660×660 | 706×706 | 120 | 1830 | 450 | 16-φ18 |
| 700×700 | 770×770 | 820×820 | 140 | 2130 | 450 | 20-φ18 | |
| 800×800 | 870×870 | 920×920 | 140 | 2440 | 450 | 20-φ18 | |
| 900×900 | 974×974 | 1030×1030 | 160 | 2660 | 450 | 24-φ23 | |
| 1000×1000 | 1074×1074 | 1130×113 | 160 | 2870 | 450 | 24-φ23 | |
| 說明 | LMD-單向 | Ⅰ-手輪 | 鏈條節數M=0.105×-113(×是絲桿中心離地面高度)距地面小于1.7米用于手輪大于1.7米用鏈輪 | ||||
| LMD-雙向 | Ⅱ-鏈條 | ||||||
產品外形結構尺寸圖

閘門在安裝時應注意事項
1、閘門安裝時應采用整體就位安裝,禁止閘框、閘板分體安裝,防止閘框變形。2、在閘門安裝前,首先檢查各連接部位的螺栓是否因運輸裝卸中造成的松動,如有松動應加以緊固。
3、閘門出廠前,為了使閘板、閘框貼合的更緊,安裝后減少間隙,2米以上的閘門在上下橫框上安裝了壓板卡鐵,立框的斜鐵上增加了頂絲。注意在間隙調整后將卡鐵和斜鐵上的頂絲拆除,以使閘門啟閉。
4、檢查主立框與橫框連結上的止水面是否有錯位,如有錯位則松動連接螺栓將止水面調整在同一平面內。
5、在澆筑混凝土時,流進閘板、閘框、斜鐵、擋板間隙中的灰漿應,防止灰漿凝固影響啟閉。
6、二期澆筑前將閘門整體吊裝就位后找好前后、左右的正確位置,然后調整螺栓與工程配鋼筋焊牢固。 同時閘門的分類有很多,不僅有鑄鐵閘門還有鋼閘門、鑲銅閘門等等,并且以上的信息同樣適用于其他類別的閘門!
聲明:本文中所有文字、數據、圖片均只適用于參考,LMD型氣動螺旋閘門/氣動插板閥性能參數、結構尺寸參數、價格等詳情,請聯系我們,電話:021-80392609。
-

GHPZS673H-10Q氣動雙填料密封刀閘閥 雙重密封刀閘閥
一、主要用途和性能: 1、GHPZ刀閘閥適用于粉體、漿液、顆粒、粉塵、污水、礦漿等固態...
-

GHPZ系列雙填料刀閘閥-氣動刀型漿液閥-帶保護罩氣動刀
*** : 滬工恒 型號 : 、GHPZ 連接形式 : 對夾 主體材料 : 不銹鋼 公稱通徑 : 50-1200 ...
-

PZ941H電動排渣閘閥PN16~PN64
產品說明: PZ941H電動排渣閘閥適用于工作壓力 1.6~6.4MPa,工作溫度 0~100℃ 的火力...
-

Z962Y-P54l70v/Z962Y-P54200v高溫高壓電站雙閘板鉻鉬
產品概述 Z962Y-P54l70v Z962Y-P54200v高溫高壓電站雙閘板鉻鉬鋼 電動閘閥 也稱電站專...


