
DZ40Y型150(Lb)~600(Lb)低溫閘閥主要性能參數及外形及結構尺寸更新日期:2015-03-26
主要性能參數
| 型號 |
壓力級 (Lb) |
適用介質 |
適用溫度 (℃) |
材料 | |||
| 閥體、閥蓋、支架、閘板 | 閥桿 | 密封面材料 | 填料、墊片 | ||||
| DZ40Y-150(Lb) | 150 |
丙烷、丙烯 、甲醇、乙烯 等非腐蝕性介質 |
﹣46 | 碳素鋼 |
鉻鎳鈦 不銹鋼 |
碳鋼堆焊 硬質合金 |
聚四氟乙烯 |
| DZ40Y-300(Lb) | 300 | ||||||
| DZ40Y-600(Lb) | 600 | ||||||
| DZ40Y-150(Lb)I | 150 | ﹣101 | 合金鋼 | ||||
| DZ40Y-300(Lb)I | 300 | ||||||
| DZ40Y-600(Lb)I | 600 | ||||||
| DZ40Y-150(Lb)P | 150 | ﹣196 | 鉻鎳鈦不銹鋼 | ||||
| DZ40Y-300(Lb)P | 300 | ||||||
| DZ40Y-600(Lb)P | 600 | ||||||
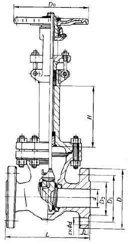
主要外形及結構尺寸

| DN/in | DN | L | D | D1 | D2 | b | z×Φd | D0 | H | ||
| ﹣46℃ | ﹣101℃ | ﹣196℃ | |||||||||
| 2 | 50 | 178 | 152 | 120.6 | 92.1 | 16 | 4×Φ19 | 200 | 110 | 130 | 170 |
| 3 | 80 | 203 | 191 | 152.4 | 127 | 19.5 | 4×Φ19 | 250 | 120 | 150 | 190 |
| 4 | 100 | 229 | 229 | 190.5 | 157.2 | 24 | 8×Φ19 | 250 | 130 | 160 | 200 |
| 5 | 125 | 254 | 254 | 215.9 | 185.7 | 24 | 8×Φ22 | 300 | 140 | 170 | 220 |
| 6 | 150 | 267 | 279 | 241.3 | 215.9 | 25.5 | 8×Φ22 | 300 | 140 | 170 | 220 |
| 8 | 200 | 292 | 342 | 298.4 | 269.9 | 29 | 8×Φ22 | 350 | 140 | 170 | 220 |
| 10 | 250 | 330 | 406 | 361.9 | 323.8 | 30.5 | 12×Φ25 | 400 | 150 | 180 | 240 |
| 12 | 300 | 356 | 483 | 432 | 381 | 32 | 12×Φ25 | 400 | 150 | 180 | 240 |
| DN/in | DN | L | D | D1 | D2 | b | z×Φd | D0 | H | ||
| ﹣46℃ | ﹣101℃ | ﹣196℃ | |||||||||
| 2 | 50 | 216 | 165 | 127 | 92.1 | 22.5 | 8×Φ19 | 200 | 110 | 130 | 170 |
| 3 | 80 | 283 | 210 | 168.3 | 127 | 29 | 8×Φ22 | 250 | 120 | 150 | 190 |
| 4 | 100 | 305 | 254 | 200 | 157.2 | 32 | 8×Φ22 | 300 | 130 | 160 | 200 |
| 5 | 125 | 381 | 279 | 234.9 | 185.7 | 35 | 8×Φ22 | 350 | 140 | 170 | 220 |
| 6 | 150 | 403 | 318 | 269.9 | 215.9 | 37 | 12×Φ22 | 350 | 140 | 170 | 220 |
| 8 | 200 | 419 | 381 | 330.2 | 269.9 | 41.5 | 12×Φ25 | 400 | 140 | 170 | 220 |
| 10 | 250 | 451 | 445 | 387.5 | 323.8 | 48 | 16×Φ29 | 450 | 150 | 180 | 240 |
| 12 | 300 | 502 | 521 | 451 | 381 | 51 | 16×Φ32 | 500 | 150 | 180 | 240 |
| DN/in | DN | L | D | D1 | D2 | b | z×Φd | D0 | H | ||
| ﹣46℃ | ﹣101℃ | ﹣196℃ | |||||||||
| 2 | 50 | 292 | 165 | 127 | 92.1 | 22.5 | 8×Φ19 | 250 | 110 | 130 | 170 |
| 3 | 80 | 356 | 210 | 168.3 | 127 | 32 | 8×Φ22 | 250 | 120 | 150 | 190 |
| 4 | 100 | 432 | 273 | 215.9 | 157.2 | 38.5 | 8×Φ25 | 350 | 130 | 160 | 200 |
| 5 | 125 | 508 | 330 | 266.7 | 185.7 | 44.5 | 8×Φ29 | 400 | 140 | 170 | 220 |
| 6 | 150 | 559 | 356 | 292.1 | 215.9 | 48 | 12×Φ29 | 450 | 140 | 170 | 220 |
| 8 | 200 | 660 | 419 | 349.2 | 269.9 | 56 | 12×Φ32 | 500 | 140 | 170 | 220 |
| 10 | 250 | 787 | 510 | 432.8 | 323.8 | 63.5 | 16×Φ35 | 600 | 150 | 180 | 240 |
| 12 | 300 | 838 | 559 | 489 | 381 | 66.7 | 20×Φ35 | 685 | 150 | 180 | 240 |






