

D943H大口徑電動硬密封三偏心蝶閥-多回轉電動執行器
產品概述 D943H大口徑電動硬密封三偏心蝶閥-多回轉電動執行器采用三維偏心結構,蝶板為軟硬層疊式金屬片,具有金屬硬密封和彈性密封的雙重***點。 電動蝶閥 所配電動執行機構采用多回轉,具有輸出力矩大和過過矩保護裝置,當閥門出現卡阻時,可有效避免出現機...
產品型號:D943H
產品口徑(DN):20~2400(mm)
產品壓力(PN):1.0~6.4Mpa(Mpa)
更新日期:2019-10-08
24小時免費咨詢電話021-80392609
- 產品詳情
產品概述
D943H大口徑電動硬密封三偏心蝶閥-多回轉電動執行器采用三維偏心結構,蝶板為軟硬層疊式金屬片,具有金屬硬密封和彈性密封的雙重***點。電動蝶閥所配電動執行機構采用多回轉,具有輸出力矩大和過過矩保護裝置,當閥門出現卡阻時,可有效避免出現機械隕傷,從而保護了電動蝶閥的使用壽命。電動硬密封法蘭蝶閥具有雙向密封功能,安裝時不受介質流向的限制,也不受 空間位置的影響,可在任何方向安裝。電動硬密封法蘭蝶閥被廣泛用于介質溫度≤425℃的冶金、電力、石油、化工等工業管道上,做調節流量和截斷流體使用。
電動硬密封蝶閥其主要特點如下:
1:閥軸位于閥座后面,使得密封能夠完全緊密環繞接觸整個閥座。
2:閥軸中心線偏離管道和閥門中心線,避免受閥開啟和關閉的干擾。
3:閥座錐體軸偏離閥軸中心線,這樣可以在關閉和開啟過程中磨擦作用,并且實現環繞整個閥座的均勻一致的壓縮密封效果。
4:使用壽命更長的無磨擦密封
5:作為標準配置,閥座采Cr13合金或鎢絡鈷合金硬面。
6:密封墊采用螺旋盤繞不銹鋼/石墨,用于實現零泄漏。
主要設計標準
| 設計標準 | GB/T2238-1989 |
|---|---|
| 法蘭連接尺寸 | GB/T9113.1-2000;GB/T9115.1-2000;JB78 |
| 結構長度 | GB/T12221-1989 |
| 壓力試驗 | GB/T13927-2000;JB/T9092-1999 |
電動執行器技術參數
1供電電源:AC380V (±10%)、單相:AC220V (-15%〜+10%)
2.頻率:50Hz(±l%);
3.環境相對濕度:在95% (25℃時);
4.海拔:≤1000m;
5.環境溫度:-20℃〜+60℃;
6.防護等級:IP65;
7.防爆標志:ExdIIBT4;
8.電機為短時工作制:額定運行時間為10分鐘,F級絕緣;
9.以上參數如有特殊要求可另行訂貨。
多回轉電動執行器結構和工作原理
1.多回轉電動執行器由電機、減速器、行程控制機構、力矩控制機構、開度指示器、精密電位器、手/電動切換機構、手輪及電氣部分組成。戶外型采用了圓止口和0型圈密封;防爆型與戶外型的密封結構相同,并增加了隔爆面結構,釆用了防爆型接線盒。2.電機:標準型采用YDF、防爆型采用YBDF系列,戶外防腐、防爆型電動閥門專用電機。
3.減速器:由一對正齒輪和蝸輪蝸桿副組成。電機的動力經減速器傳遞給輸出軸。
4.力矩控制機構:為全系列通用部件。結構見圖8所示。當輸出軸受到一定轉矩后,蝸桿除旋轉外還產生軸向位移,帶動曲拐,使撞塊產生角位移,從而壓迫凸輪,使支架上抬。當輸出軸上的轉矩增大后,輸出控制力矩的微動開關工作,達到保護電動閥門的目的。
5.電機工作原理:電機旋轉通過電機齒輪直接帶動蝸桿齒輪轉動,蝸桿帶動蝸輪轉動,再通過離合器帶動輸出軸轉動。電動操作總是***先,手、電動在輸出軸轉動的同時帶動一對傘齒輪轉動,并通過精密電位器測閥位變化。
6.行程控制器:采用十進制計數器原理,控制精度高。為全系列通用部件,其結構見圖9。工作原理為:由減速箱內的一對大小傘齒輪帶動主動小齒輪(z=8),再帶動計數器工作。如果計數器按閥門開、關的位置己調整好,當計數器隨輸出軸轉動到預先調整好的位置(圈數)時,則凸輪將轉動90°,迫使微動開關動作,切斷電機電源,使電機停轉,從而實現對電動裝置行程(轉圈數)的控制。
7.開度指示器:為全系列通用部件,其結構見圖10,輸入齒輪由計數器個位齒輪帶動,經減速后,指示盤隨閥門的開關過程同時轉動,以指示閥門的開啟或關閉。電位器的動片和指示盤同步轉動,供遠傳開度指示用,移動轉圈數調整齒輪可以改變轉圈數。開度指示器內設一微動開關和凸輪,當電動裝置運轉時,旋轉凸輪周期性地使微動開關動作,其頻率為輸出軸轉動一圈動作一次或二次,可供閃光信號等使用。
8.手電動切換機構:為半自動切換,其結構見圖11所示。它由切換手柄、凸輪、直立桿、框架、悶蓋、中間離合器、壓簧、手動軸、手輪等組成。用手輪操作時,先把切換手柄向手動方向推動,凸輪隨手柄軸一起轉動,使支撐在凸輪面上的框架抬起,并使支撐在框架上的離合器作軸向移動,同時中間離合器抬高,并壓迫壓簧。當手推到一定位置時,中間離合器即脫離蝸輪而與手輪_合,則可使手輪上的作用力通過中間離合器傳到輸出軸上即成為手動狀態。當框架抬搞到一定高度時,安裝在框架上的直立桿在扭簧的作用下直立于蝸輪端面,支撐住框架使中間離合器不致下落,手柄推到手動位置時即可放開,用手輪操作。當電機帶動蝸輪轉動時,直立桿即倒下,在壓簧作用下中間離合器迅速向蝸輪方向移動,并與蝸輪嚙合,同時與手輪脫開,則成為電動狀態。
主要零件材料
| 零件名稱 | 材料 |
|---|---|
| 閥體 | 鑄鐵、不銹鋼、鉻鉬鋼、合金鋼 |
| 蝶板 | 鑄鋼、合金鋼、不銹鋼、鉻鉬鋼 |
| 密封圈 | 不銹鋼與耐高溫石棉板組合成多層次 |
| 閥桿 | 2Cr13、1Cr13不銹鋼、鉻鉬鋼 |
| 填料 | O型圈、柔性石墨 |
主要性能規范
| 公稱通徑DN(mm) | DN50~1200 | ||||
|---|---|---|---|---|---|
| 公稱壓力 | PN(MPa) | 0.6 | 1.0 | 1.6 | 2.5 |
| 試驗壓力 | 強度試驗 | 0.9 | 1.5 | 2.4 | 3.75 |
| 密封試驗 | 0.66 | 1.1 | 1.76 | 2.75 | |
| 低壓氣密試驗 | 0.5~0.7 | ||||
| 適用介質 | 空氣、水、污水、蒸氣、煤氣、油品等 | ||||
| 適用溫度 | 碳鋼:-29℃~600℃ 不銹鋼:-40℃~600℃ | ||||
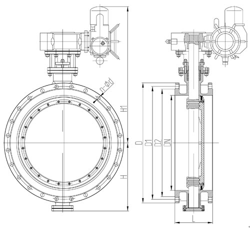
主要外形尺寸

|
公稱通經 (DN) |
主要尺寸 | 法蘭尺寸 | ||||||||||
|---|---|---|---|---|---|---|---|---|---|---|---|---|
| L | H | H1 | 1.0MPa | 1.6MPa | 2.5MPa | |||||||
| D | D1 | n-Фd | D | D1 | n-Фd | D | D1 | n-Фd | ||||
| 50 | 108 | 112 | 530 | 165 | 125 | 4-18 | 165 | 125 | 4-18 | 165 | 125 | 4-18 |
| 65 | 112 | 115 | 530 | 185 | 145 | 4-18 | 185 | 145 | 4-18 | 185 | 145 | 8-18 |
| 80 | 114 | 120 | 565 | 200 | 160 | 4-18 | 200 | 160 | 8-18 | 200 | 160 | 8-18 |
| 100 | 127 | 138 | 600 | 220 | 180 | 8-18 | 220 | 180 | 8-18 | 235 | 190 | 8-22 |
| 125 | 140 | 164 | 640 | 250 | 210 | 8-18 | 250 | 210 | 8-18 | 270 | 220 | 8-26 |
| 150 | 140 | 175 | 705 | 285 | 240 | 8-22 | 285 | 240 | 8-22 | 300 | 250 | 8-26 |
| 200 | 152 | 200 | 775 | 340 | 295 | 8-22 | 340 | 295 | 12-22 | 360 | 310 | 12-26 |
| 250 | 165 | 243 | 945 | 395 | 350 | 12-22 | 405 | 355 | 12-26 | 425 | 370 | 12-30 |
| 300 | 178 | 250 | 1070 | 445 | 400 | 12-22 | 460 | 410 | 12-26 | 485 | 430 | 16-30 |
| 350 | 190 | 280 | 1140 | 505 | 460 | 16-22 | 520 | 470 | 12-26 | 555 | 490 | 16-33 |
| 400 | 216 | 305 | 1210 | 565 | 515 | 16-26 | 580 | 525 | 16-26 | 620 | 550 | 16-36 |
| 450 | 222 | 350 | 1335 | 615 | 565 | 20-26 | 640 | 585 | 16-30 | 670 | 600 | 20-36 |
| 500 | 229 | 380 | 1415 | 670 | 620 | 20-26 | 715 | 650 | 20-30 | 730 | 660 | 20-36 |
| 600 | 267 | 445 | 1605 | 780 | 725 | 20-30 | 840 | 770 | 20-33 | 845 | 770 | 20-39 |
| 700 | 292 | 480 | 1844 | 895 | 840 | 24-30 | 910 | 840 | 24-36 | 960 | 875 | 24-42 |
| 800 | 318 | 530 | 2040 | 1015 | 950 | 24-33 | 1025 | 950 | 24-39 | 1085 | 990 | 24-48 |
| 900 | 330 | 580 | 2255 | 1115 | 1050 | 28-33 | 1125 | 1050 | 28-39 | 1185 | 1090 | 28-48 |
| 1000 | 410 | 650 | 2380 | 1230 | 1160 | 28-36 | 1255 | 1170 | 28-42 | 1320 | 1210 | 28-56 |
| 1200 | 470 | 760 | 2640 | 1455 | 1380 | 32-39 | 1485 | 1390 | 32-48 | 1530 | 1420 | 32-56 |
注:表中尺寸為不帶標準附件數據。另由于產品改進技術創新參數可能有一定變化,請咨詢公司技術部門索取數據。







