

泄氮閥(泄氮裝置)
概述: 防止儲罐等容器出現過壓或負壓的簡單方法是在容器頂部設置開口;此種情況下,再向容器內注入產品時,任何的多余空氣或氣體可由離開容器;相反當產品排出時,空氣可流入容器內。但是進入儲罐內的空氣可能會污染產品,尤其是當儲罐中存儲的是有機溶液與...
- 產品詳情
防止儲罐等容器出現過壓或負壓的簡單方法是在容器頂部設置開口;此種情況下,再向容器內注入產品時,任何的多余空氣或氣體可由離開容器;相反當產品排出時,空氣可流入容器內。但是進入儲罐內的空氣可能會污染產品,尤其是當儲罐中存儲的是有機溶液與碳氫物時,易燃性氣體(或空氣)會在產品上方形成;此外,還有可能發生不良氣體與蒸氣的釋放。
避免以上情況的發生,需要將儲罐密封;然而,儲罐中物料存放在常壓條件下,需要避免在對其灌裝或溫度升高時出現過壓,也需要避免在排放產品時出現真空,因此氣封系統的安裝顯的尤為必要。
氮封系統是基于壓力的氣封工藝,可確保儲罐頂部空間處于惰性氣體保護與微正壓控制之下。
組件構成:
氮封裝置(氮封閥)常規情況是由供氮閥、泄氮閥和呼吸閥三大部份組成。當罐內壓力升高超過設定值時,供氮閥關閉,泄氮閥打開,將罐內多余壓力快速泄放。在儲罐內壓力降低時,泄氮閥處于關閉狀態,供氮閥打開,向罐內注入氮氣并保證儲罐處于微正壓的狀態。供氮閥氮氣源壓力保持在0.2~0.8MPa之間的一個固定值,現場壓力較高時,可在供氮閥前安裝一臺自力式調壓閥將壓力減至0.8 Mpa以下,以提高可靠性和使用效果。
泄氮裝置(泄氮閥)概述
泄氮裝置(泄氮閥)是一種無需外加能源,利用被調介質本身壓力變化而實現自動調節的控制閥,具有動作靈敏,控制精度高,節約能源的特點。
本系列泄氮裝置(泄氮閥)從30mmH2O至0.2MPa均可分段調節,廣泛適用于化工儲罐氮封、超純水氮封、食用油氮封、導熱油槽罐氮封等需要與空氣隔絕的氮封保護系統。
泄氮裝置(泄氮閥)為氮封閥的泄壓部分:當罐內壓力升高至設定值時,供氮閥關閉,泄氮閥打開,將罐內多余壓力泄放。
泄氮裝置(泄氮閥)主要技術參數
| 公稱通徑DN | 15 | 20 | 25 | 32 | 40 | 50 | 65 | 80 | 100 | 125 | 150 | 200 | |
|
額定流量 |
大容量型 | 5 | 7 | 11 | 20 | 30 | 48 | 75 | 120 | 190 | 300 | 480 | 760 |
| 標準型 | 3 | 5 | 7 | 11 | 20 | 30 | 48 | 75 | 120 | 190 | 300 | 480 | |
| 高精度型 | 0.32 | 2.8 | 5 | 7 | 11 | 20 | 30 | 48 | 75 | 120 | 190 | 300 | |
| 額定行程 | 8 | 10 | 14 | 20 | 25 | 40 | 50 | ||||||
| 公稱壓力 | PN10、PN16 | ||||||||||||
| 固有流量特性: | 快開 | ||||||||||||
| 固有可調比R : 30 | |||||||||||||
|
設定點壓力調節 范圍:(KPa) |
0.3~1.0、0.5~1.5、3~10、5~15、10~30、20~40、30~60、40~80、50~100、60~150、80~160、100~200 | ||||||||||||
| 調節精度(%):±5~10 | |||||||||||||
| 工作溫度(℃):橡膠膜片(丁晴):-20~80 橡膠膜片(氟膠):-20~200 | |||||||||||||
| 泄漏等級 | Ⅳ級(10-4×閥額定容量)、Ⅵ級(微氣泡級) | ||||||||||||
泄氮裝置(泄氮閥)整機工作原理及作用方式
泄氮裝置(泄氮閥)的作用方式為壓開型,初始位置為關。其工作原理為:介質由閥體上箭頭方向流經閥體,閥芯位置即閥芯和閥座之間的截流面積決定了介質的流量。受控的上游壓力(P1)進入檢測室,并在此轉換成定位力;根據彈簧力大小,定位力調整閥芯位置。當閥前壓力(P1)升高時,使閥芯位移,閥門趨于開啟,從而達到泄壓的目的。相反當閥前壓力(P1)降低時,調壓閥主閥趨向關閉,從而達到穩壓目的。
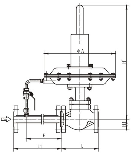
泄氮閥(泄氮裝置)外形尺寸

| 公稱通徑DN | 15 | 20 | 25 | 32 | 40 | 50 | 65 | 80 | 100 | 125 | 150 | 200 |
| L | 130 | 150 | 160 | 180 | 200 | 230 | 290 | 310 | 350 | 400 | 480 | 600 |
| A |
Φ280、Φ308、Φ394、Φ498 |
|||||||||||
| H1 | 42 | 42 | 48 | 56 | 64 | 76 | 85 | 100 | 110 | 126 | 160 | 202 |
| H | 450 | 450 | 450 | 470 | 485 | 490 | 530 | 550 | 560 | 650 | 660 | 900 |
| L1 | 233 | 233 | 233 | 332 | 332 | 373 | 572 | 552 | 673 | 980 | 900 | 1200 |
| P≥ | 135 | 135 | 170 | 220 | 220 | 235 | 245 | 325 | 425 | 550 | 660 | 900 |
| 重量(KG) | 12 | 12 | 13 | 14 | 16 | 19 | 28 | 45 | 78 | 130 | 200 | 265 |
| 導壓管螺紋接頭 | M16*1.5 | |||||||||||






