

V230-D01/D02自力式壓力調節閥PN16~PN40
產品概述 : 直接作用型自力式壓力(差壓)調節閥,由閥體、閥座、閥芯部件等零部件組成,是一種無需外來能源而只依靠被調介質自身的壓力變化進行自動調節壓力的節能型產品,可用于非腐蝕性(高溫度350℃)的液體、氣體和蒸汽等介質的壓力控制裝置。廣泛適...
產品型號:V230-D01/D02
產品口徑(DN):15~250(mm)
產品壓力(PN):1.6~4.0(Mpa)
更新日期:2012-04-28
免費詢價
24小時免費咨詢電話021-80392609
- 產品詳情
產品概述 :
直接作用型自力式壓力(差壓)調節閥,由閥體、閥座、閥芯部件等零部件組成,是一種無需外來能源而只依靠被調介質自身的壓力變化進行自動調節壓力的節能型產品,可用于非腐蝕性(溫度350℃)的液體、氣體和蒸汽等介質的壓力控制裝置。廣泛適用于石油、化工、冶金、輕工等工業部門及城市供熱、供暖系統。產品零件資料:
1.閥體、閥蓋:HT200 ZG230~450 ZG1Cr18Ni9Ti;2.閥芯、閥座:1Cr18Ni9Ti;3.波 紋 膜 片:丁腈橡膠夾增強滌綸織物;4.填 料:聚四氟乙烯、柔性石墨;5.彈 簧:60si2Mn;6.膜 蓋:A3;7.推桿、閥桿:2Cr13、1Cr18Ni9Ti;8.襯 套:2Cr13;9.墊 片:橡膠石棉板、10、1Cr18Ni9石棉纏繞墊片;產品技術參數:
| 公稱通徑 mm | 15 | 20 | 25 | 32 | 40 | 50 | 65 | 80 | 100 | 125 | 150 | 200 | 250 | |
| 額定流量系數 Kvs | 3.2 | 5 | 8 | 12.5 | 20 | 32 | 50 | 80 | 125 | 160 | 320 | 450 | 630 | |
| 公稱壓力 MPa | 1.6 ; 4.0 | |||||||||||||
| Z 值 | 0.6 | 0.6 | 0.6 | 0.55 | 0.55 | 0.5 | 0.5 | 0.45 | 0.4 | 0.35 | 0.3 | 0.2 | 0.2 | |
| 工作溫度℃ | V230 V231 | 液體≤ 140 ;氣體≤ 80 | ||||||||||||
| 硬密封 V230 | 配隔離罐≤ 200 | 配隔離罐和加長件≤ 300* | ||||||||||||
| 配隔離罐和散熱片≤ 200 | ||||||||||||||
| 壓力平衡元件 | 波紋管 | 滾動膜片 | ||||||||||||
| 法 蘭 標 準 | DIA (亦可按用戶要求提供法蘭標準) | |||||||||||||
| 閥 體 材 質 |
PN16 :鑄鐵(工作溫度≤ 200 ℃); PN4.0 :鑄鋼、鑄不銹鋼(工作溫度≤ 350 ℃) |
|||||||||||||
| 閥 芯 材 質 | 不銹鋼;軟密封為不銹鋼鑲嵌橡膠圈 | |||||||||||||
| 工作壓力 MPa | 公稱壓力(注意△ Pmax 及工作壓力與工作溫度的關系) | |||||||||||||
產品型號、規格
|
類別 |
壓力控制調節閥 | 差壓控制調節閥 | ||
| 閥后壓力調節閥 | 閥前壓力調節閥 | 差壓上升閥關閉 | 差壓上升閥開啟 | |
| 硬密封 | 硬密封 | 硬密封 | 硬密封 | |
| 型號 | V230 D01 | V230 D02 | V230 D03 | V230 D04 |
| 規格 | DN15-250 | |||
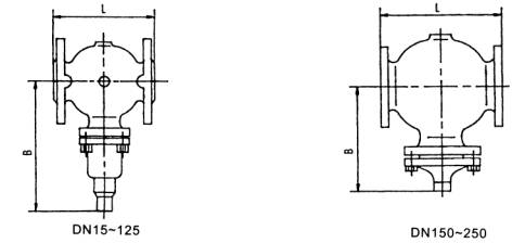
產品外形結構尺寸:
| 公稱通徑 mm | 20 | 25 | 32 | 40 | 50 | 65 | 80 | 100 | 125 | 150 | 200 | 250 |
| L mm | 150 | 160 | 180 | 200 | 230 | 290 | 310 | 350 | 400 | 480 | 600 | 730 |
| B mm | 212 | 238 | 238 | 240 | 240 | 275 | 275 | 380 | 380 | 295 | 325 | 372 |
| 大約重量 kg | 6.7 | 9.7 | 13 | 14 | 17 | 29 | 33 | 60 | 70 | 80 | 140 | 220 |
執行器尺寸及重量:
| 有效面積 cm 2 | 32 | 80 | 250 | 630 |
| D mm | 172 | 172 | 263 | 380 |
| H mm | 435 | 430 | 470 | 520 |
| 大約重量 kg | 7.5 | 7.5 | 13 | 28 |
| 有效面積 cm 2 | 32 | 80 | 250 | 630 |
| D mm | 172 | 172 | 263 | 380 |
| H mm | 440 | 435 | 440 | 520 |
| 大約重量 kg | 7.5 | 7.5 | 13 | 28 |
產品外形結構尺寸圖:

用戶訂貨須知:
訂貨時請用戶提供以下資料:1.調節閥名稱、型號;2.公稱通徑(mm);3.公稱壓力(MPa);4.額定流量系數(Kv);5.固有流量特性;6.介質名稱;7.工作溫度及范圍;8.整機作用方式;9.閥體、閥內件及填料材質;10.所配附件;11.其它特殊要求;
聲明:本文中所有文字、數據、圖片均只適用于參考,V230-D01/D02自力式壓力調節閥PN16~PN40性能參數、結構尺寸參數、價格等詳情,請聯系我們,電話:021-80392609。






