

Z44Y、Z44H型鋼制平行式雙閘板手動閘閥 PN16~PN160
產品說明: Z44Y、Z44H 型 鋼制平行式雙閘板手動 閘閥 PN16~PN160傳動方式為手動,連接方式為法蘭連接,閥門為明桿平行式剛性雙閘板,閥座密封面材料為堆焊不銹鋼(Z44H)、堆焊硬質合金(Z44Y),公稱壓力 PN16~PN160,閥體材料為碳素鋼(Z44H-16C~160C Z44...
產品型號:Z44Y、Z44H
產品口徑(DN):40~800(mm)
產品壓力(PN):1.6~16.0(Mpa)
更新日期:2012-06-18
免費詢價
24小時免費咨詢電話021-80392609
- 產品詳情
產品說明:
Z44Y、Z44H 型 鋼制平行式雙閘板手動閘閥 PN16~PN160傳動方式為手動,連接方式為法蘭連接,閥門為明桿平行式剛性雙閘板,閥座密封面材料為堆焊不銹鋼(Z44H)、堆焊硬質合金(Z44Y),公稱壓力 PN16~PN160,閥體材料為碳素鋼(Z44H-16C~160C Z44Y-16C~160C)、鉻鉬鋼(Z44Y-16I~160I)、不銹鋼(Z44Y-16P~160P Z44Y-16R~160R)的閘閥。產品性能參數:
| 型號 | PN | 工作壓力/MPa | 適用溫度/℃ | 適用介質 |
|---|---|---|---|---|
| Z44H-16C~160C | 16~160 | 1.6~16.0 | ≤425 | 天然氣、水、蒸汽、油品 |
| Z44Y-16C~160C | ||||
| Z44Y-16I~160I | ≤550 | 水、蒸汽、油品 | ||
| Z44Y-16P~160P | ≤150 | 硝酸類 | ||
| Z44Y-16R~160R | 醋酸類 |
產品零部件材料:
| 型號 | 材料 | |||
|---|---|---|---|---|
| 閥體、閥蓋、閘板 | 閥桿 | 密封面 | 填料 | |
| Z44H-16C~160C | 碳素鋼 | 鉻不銹鋼 | 堆焊不銹鋼 | 柔性石墨 |
| Z44Y-16C~160C | 堆焊鈷鉻鎢硬質合金 | |||
| Z44Y-16I~160I | 鉻鉬鋼 | 鉻鉬鋼 | ||
| Z44Y-16P~160P | 鉻鉬鈦鋼 | 鉻鉬鈦鋼 | 柔性石墨或聚四氟乙烯 | |
| Z44Y-16R~160R | 鉻鎳鉬鈦鋼 | 鉻鎳鉬鈦鋼 | ||
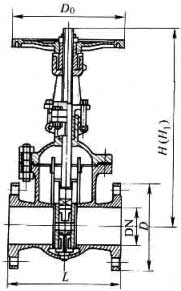
產品外形結構尺寸:
| DN | DN/in | L | D | H | H1 | D0 | 重量/kg |
|---|---|---|---|---|---|---|---|
| 40 | 1 3/4 | 240 | 145 | 375 | 420 | 250 | 21 |
| 50 | 2 | 250 | 160 | 375 | 430 | 250 | 23 |
| 65 | 2 1/2 | 270 | 180 | 445 | 517 | 300 | 37 |
| 80 | 3 | 280 | 195 | 445 | 530 | 300 | 39 |
| 100 | 4 | 300 | 215 | 510 | 510 | 300 | 52 |
| 125 | 5 | 325 | 245 | 665 | 800 | 350 | 100 |
| 150 | 6 | 350 | 280 | 658 | 818 | 350 | 119 |
| 200 | 8 | 400 | 335 | 681 | 891 | 400 | 186 |
| 250 | 10 | 450 | 405 | 870 | 1130 | 450 | 263 |
| 300 | 12 | 500 | 460 | 870 | 1130 | 500 | 385 |
| 350 | 14 | 550 | 520 | 920 | 1280 | 550 | 514 |
| 400 | 16 | 600 | 580 | 1040 | 1450 | 700 | 800 |
| 450 | 18 | 650 | 640 | 1140 | 1600 | 700 | 1060 |
| 500 | 20 | 700 | 705 | 1290 | 1800 | 700 | 1450 |
| 600 | 24 | 800 | 840 | 1490 | 2100 | 900 | 1750 |
| 700 | 28 | 900 | 910 | 2420 | 3130 | 900 | 2160 |
| 800 | 32 | 1000 | 1020 | 1890 | 2700 | 900 | 2470 |
| DN | DN/in | L | D | H | H1 | D0 | 重量/kg |
|---|---|---|---|---|---|---|---|
| 40 | 1 3/4 | 240 | 145 | 385 | 430 | 250 | 21 |
| 50 | 2 | 250 | 160 | 390 | 430 | 250 | 24 |
| 65 | 2 1/2 | 270 | 180 | 445 | 517 | 300 | 37 |
| 80 | 3 | 280 | 195 | 450 | 530 | 300 | 38 |
| 100 | 4 | 300 | 230 | 510 | 620 | 300 | 58 |
| 125 | 5 | 325 | 270 | 665 | 800 | 350 | 100 |
| 150 | 6 | 350 | 300 | 685 | 818 | 350 | 119 |
| 200 | 8 | 400 | 360 | 690 | 891 | 400 | 197 |
| 250 | 10 | 450 | 425 | 870 | 1130 | 450 | 287 |
| 300 | 12 | 500 | 485 | 990 | 1300 | 500 | 385 |
| 350 | 14 | 550 | 550 | 920 | 1280 | 550 | 514 |
| 400 | 16 | 600 | 610 | 1040 | 1450 | 700 | 800 |
| 450 | 18 | 650 | 660 | 1140 | 1600 | 700 | 1060 |
| 500 | 20 | 700 | 730 | 1290 | 1800 | 700 | 1450 |
| 600 | 24 | 800 | 840 | 1490 | 2100 | 900 | 1750 |
| 700 | 28 | 900 | 955 | 1690 | 2400 | 900 | 2160 |
| 800 | 32 | 1000 | 1070 | 1890 | 2700 | 900 | 2470 |
| DN | DN/in | L | D | H | H1 | D0 | 重量/kg |
|---|---|---|---|---|---|---|---|
| 40 | 1 3/4 | 240 | 145 | 391 | 435 | 250 | 26 |
| 50 | 2 | 250 | 160 | 395 | 450 | 250 | 30 |
| 65 | 2 1/2 | 280 | 180 | 458 | 530 | 300 | 43 |
| 80 | 3 | 310 | 195 | 477 | 565 | 300 | 62 |
| 100 | 4 | 350 | 230 | 530 | 640 | 300 | 82 |
| 125 | 5 | 400 | 270 | 605 | 740 | 350 | 115 |
| 150 | 6 | 450 | 300 | 725 | 885 | 350 | 145 |
| 200 | 8 | 550 | 375 | 905 | 1115 | 400 | 210 |
| 250 | 10 | 650 | 445 | 1035 | 1295 | 450 | 315 |
| 300 | 12 | 750 | 510 | 1135 | 1445 | 500 | 400 |
| 350 | 14 | 850 | 570 | 1220 | 1580 | 550 | 550 |
| 400 | 16 | 950 | 655 | 1340 | 1750 | 700 | 900 |
| 450 | 18 | 1050 | 680 | 1440 | 1900 | 700 | 1240 |
| 500 | 20 | 1150 | 755 | 1590 | 2100 | 700 | 1900 |
| DN | DN/in | L | D | H | H1 | D0 | 重量/kg |
|---|---|---|---|---|---|---|---|
| 40 | 1 3/4 | 240 | 165 | 391 | 435 | 250 | 32 |
| 50 | 2 | 250 | 175 | 395 | 450 | 250 | 42 |
| 65 | 2 1/2 | 280 | 200 | 458 | 530 | 300 | 55 |
| 80 | 3 | 310 | 210 | 477 | 565 | 300 | 80 |
| 100 | 4 | 350 | 250 | 530 | 640 | 300 | 120 |
| 125 | 5 | 400 | 295 | 605 | 740 | 350 | 170 |
| 150 | 6 | 450 | 340 | 720 | 885 | 350 | 245 |
| 200 | 8 | 550 | 405 | 925 | 1135 | 450 | 415 |
| 250 | 10 | 650 | 470 | 1075 | 1335 | 450 | 415 |
| 300 | 12 | 750 | 530 | 1135 | 1445 | 500 | 505 |
| 350 | 14 | 850 | 595 | 1220 | 1580 | 550 | 650 |
| 400 | 16 | 950 | 670 | 1340 | 1750 | 700 | 1200 |
| DN | DN/in | L | D | H | H1 | D0 | 重量/kg |
|---|---|---|---|---|---|---|---|
| 40 | 1 3/4 | 240 | 165 | 406 | 450 | 250 | 42 |
| 50 | 2 | 250 | 195 | 410 | 450 | 250 | 52 |
| 65 | 2 1/2 | 280 | 220 | 478 | 550 | 250 | 68 |
| 80 | 3 | 310 | 230 | 512 | 600 | 300 | 101 |
| 100 | 4 | 350 | 265 | 566 | 670 | 300 | 180 |
| 125 | 5 | 400 | 310 | 745 | 880 | 350 | 275 |
| 150 | 6 | 450 | 350 | 825 | 985 | 350 | 350 |
| 200 | 8 | 550 | 430 | 990 | 1200 | 400 | 408 |
| 250 | 10 | 650 | 500 | 1090 | 1350 | 450 | 505 |
| 300 | 12 | 750 | 585 | 1336 | 1646 | 450 | 670 |
| 350 | 14 | 850 | 655 | 2660 | — | — | — |
| 400 | 16 | 950 | 715 | 2950 | — | — | — |
| DN | DN/in | L | D | H | H1 | D0 | 重量/kg |
|---|---|---|---|---|---|---|---|
| 40 | 1 3/4 | 260 | 175 | 395 | 351 | 320 | 66 |
| 50 | 2 | 300 | 215 | 612 | 557 | 360 | 89 |
| 65 | 2 1/2 | 340 | 245 | 677 | 605 | 360 | 123 |
| 80 | 3 | 390 | 260 | 685 | 610 | 400 | 236 |
| 100 | 4 | 450 | 300 | 751 | 641 | 450 | — |
| 125 | 5 | 525 | 355 | 868 | 733 | 560 | — |
| 150 | 6 | 600 | 390 | 997 | 837 | 640 | — |
| 200 | 8 | 750 | 480 | 1221 | 1011 | 720 | — |
| 250 | 10 | 900 | 580 | — | — | — | — |
| 300 | 12 | 1050 | 665 | — | — | — | — |
產品外形結構尺寸圖:

安裝注意事項及要點:
1、手輪、手柄及傳動機構均不允許作起吊用,并嚴禁碰撞。2、雙閘板閘閥應垂直安裝(即閥桿處于垂直位置,手輪在頂部)。
3、帶有旁通閥的閘閥在開啟前應先打開旁通閥(以平衡進出口的壓差及減小開啟力)。
4、帶傳動機構的閘閥,按產品使用說明書的規定安裝。
5、如果閥門經常開關使用,每月到少潤滑一次。
6、安裝位置、高度、進出口方向符合設計要求,連接應牢固緊密。
7、安裝在保溫管道上的各類手動閥門,手柄均不得向下。
8、帶傳動機構的閘閥,按產品使用說明書的規定安裝。
9、閥門安裝前進行外觀檢查,閥門的銘牌應符合現行國家標準《通用閥門標志》GB12220的規定。對于工作壓力大于1.0MPa及在主干管上起到切斷作用的閥門,安裝前應進行強度和嚴密性能試驗,合格后方準使用。強度試驗時,試驗壓力為公稱壓力的1.5倍,持續時間不少于5min,閥門殼體、填料應無滲漏為合格。嚴密性試驗時,試驗壓力為公稱壓力的1.1倍;試驗壓力在試驗持續的時間應符合GB50243標準要求,以閥瓣密封面無滲漏為合格。
聲明:本文中所有文字、數據、圖片均只適用于參考,Z44Y、Z44H型鋼制平行式雙閘板手動閘閥 PN16~PN160性能參數、結構尺寸參數、價格等詳情,請聯系我們,電話:021-80392609。




