

船用鑄鋼吸入通海閥
GB/T2029-1980船用鑄鋼吸入通海閥 Marine cast steel suction sea valves 性能規范 Technical Data 船用鑄鋼吸入 通海閥 性能規范 公稱壓力 Nominal Pressure (Mpa) 公稱通徑 Nominal Diameter (mm) 適用介質 Applicable medium 0.4 50-400 海水、淡水Seawate...
- 產品詳情
GB/T2029-1980船用鑄鋼吸入通海閥
Marine cast steel suction sea valves
性能規范 Technical Data
主要零部件材質Materials of Main Parts
Marine cast steel suction sea valves
性能規范 Technical Data
| 公稱壓力 Nominal Pressure (Mpa) | 公稱通徑 Nominal Diameter (mm) | 適用介質 Applicable medium |
|---|---|---|
| 0.4 | 50-400 | 海水、淡水Seawater、Fresh water |
| 50-500 |
主要零部件材質Materials of Main Parts
| 零件名稱Parts name | 材料 Material | |
|---|---|---|
| 名稱Name | 牌號Marks | |
| 閥體、閥蓋Body/Cover | 鑄鋼 Cast steel | ZG230-450 |
| 閥盤、閥座Disc/seat | 鑄錫青銅 Cast Tin Bronze | ZCuSn10Zn2 |
| 閥桿Stem | 鋁青銅 Aluminum Bronze | CuAI9Mn2 |
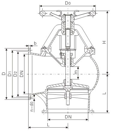
B型基本尺寸Dimensions

|
公稱通徑 DN(mm) |
結構尺寸 Structure dimension |
法蘭 Flange |
螺栓 Bolt |
壁厚 Thickness t |
手輪 Hand wheel Do |
升程 Lift range m |
參考重量 Weight (kg) |
||||||
|---|---|---|---|---|---|---|---|---|---|---|---|---|---|
| L | H | D | D1 | D2 | b | Do | n個 | Th. | |||||
| 50 | 125 | 230 | 135 | 103 | 84 | 13 | 15 | 6 | M14 | 7 | 140 | 16 | 14.4 |
| 65 | 145 | 240 | 155 | 123 | 104 | 13 | 15 | 6 | M14 | 7 | 140 | 20 | 17.6 |
| 80 | 155 | 260 | 170 | 138 | 118 | 14 | 15 | 8 | M14 | 7 | 160 | 24 | 16.8 |
| 100 | 175 | 280 | 190 | 158 | 138 | 14 | 15 | 8 | M14 | 8 | 180 | 30 | 21.8 |
| 125 | 200 | 310 | 215 | 183 | 164 | 14 | 15 | 10 | M14 | 8 | 200 | 40 | 30.8 |
| 150 | 225 | 340 | 240 | 208 | 190 | 14 | 15 | 12 | M14 | 9 | 225 | 48 | 47.8 |
| 200 | 275 | 375 | 295 | 264 | 247 | 15 | 15 | 12 | M14 | 9 | 280 | 60 | 68.4 |
| 250 | 325 | 425 | 365 | 327 | 306 | 16 | 17 | 14 | M16 | 10 | 360 | 70 | 104.0 |
| 300 | 375 | 480 | 430 | 386 | 360 | 19 | 22 | 14 | M20 | 11 | 400 | 78 | 167.0 |
| 350 | 425 | 560 | 480 | 436 | 410 | 20 | 22 | 16 | M20 | 11 | 450 | 100 | 221.0 |
| 400 | 475 | 640 | 530 | 486 | 460 | 21 | 22 | 16 | M20 | 12 | 500 | 110 | 292.0 |
|
公稱通徑 DN(mm) |
結構尺寸 Structure dimension |
法蘭 Flange |
螺栓 Bolt |
壁厚 Thickness t |
手輪 Hand wheel Do |
升程 Lift range m |
參考重量 Weight (kg) |
||||||
|---|---|---|---|---|---|---|---|---|---|---|---|---|---|
| L | H | D | D1 | D2 | b | Do | n個 | Th. | |||||
| 50 | 125 | 230 | 140 | 110 | 90 | 16 | 14 | 4 | M12 | 7 | 140 | 16 | 15.1 |
| 65 | 145 | 240 | 160 | 130 | 110 | 16 | 14 | 4 | M12 | 7 | 140 | 20 | 17.6 |
| 80 | 155 | 260 | 190 | 150 | 128 | 18 | 18 | 4 | M16 | 7 | 160 | 24 | 21.0 |
| 100 | 175 | 280 | 210 | 170 | 148 | 18 | 18 | 4 | M16 | 8 | 180 | 30 | 25.7 |
| 125 | 200 | 310 | 240 | 200 | 178 | 20 | 18 | 8 | M16 | 8 | 200 | 40 | 36.5 |
| 150 | 225 | 340 | 265 | 225 | 202 | 20 | 18 | 8 | M16 | 9 | 225 | 48 | 59.8 |
| 200 | 275 | 375 | 320 | 280 | 258 | 22 | 18 | 8 | M16 | 9 | 280 | 60 | 80.7 |
| 250 | 325 | 425 | 375 | 335 | 312 | 24 | 18 | 12 | M16 | 10 | 360 | 70 | 121.0 |
| 300 | 375 | 480 | 440 | 395 | 365 | 24 | 22 | 12 | M20 | 11 | 400 | 78 | 184.0 |
| 350 | 425 | 560 | 490 | 445 | 415 | 24 | 22 | 12 | M20 | 11 | 450 | 100 | 247.0 |
| 400 | 475 | 640 | 540 | 495 | 465 | 24 | 22 | 16 | M20 | 12 | 500 | 110 | 324.0 |
| 450 | 500 | 720 | 595 | 550 | 520 | 24 | 22 | 16 | M20 | 12 | 550 | 150 | 467.2 |
| 500 | 525 | 800 | 645 | 600 | 570 | 26 | 22 | 20 | M20 | 13 | 600 | 155 | 550.9 |
聲明:本文中所有文字、數據、圖片均只適用于參考,船用鑄鋼吸入通海閥性能參數、結構尺寸參數、價格等詳情,請聯系我們,電話:021-80392609。
-

GB/T598-1980船用外螺紋青銅填料旋塞閥
GB/T598-1980船用外螺紋青銅填料旋塞閥 Marine bronze male thread packed cocks 性能...
-

船用法蘭青銅填料直通型旋塞閥
GB/T593-1993船用法蘭青銅填料旋塞閥 Marine bronze flanged packed cocks 性能規范 T...
-

船用鑄鋼吸入通海閥
GB/T2029-1980船用鑄鋼吸入通海閥 Marine cast steel suction sea valves 性能規范 Te...
-

船用法蘭鑄鐵填料直通型旋塞閥
GB/T593-1993船用法蘭鑄鐵填料旋塞閥 Marine cast Iron flanged packed cocks 性能規...


